Burgemeester Beelaertspark 19
3319 AM Dordrecht
114 m² Wonen
118 m² Perceel
5 Kamers

Biedingen zijn online mogelijk tot maandag 5 september 20.00 uur via www.mijngratismakelaar.com. Biedingen worden alleen via de website geaccepteerd zodat het voor koper(s) en verkoper(s) transparant en eerlijk blijft.

Ook gratis je woning verkopen? Vul het contact formulier in en wij nemen contact met je op.

Status
Afgelopen
Startprijs
380.000
Bekeken
1209x
Alle biedingen:
Er zijn nog geen biedingen geplaatst.
Omschrijving

Luxe, volledig gemoderniseerd geschakeld herenhuis gelegen in de geliefde villawijk Burgemeester Beelaertspark! Deze geschakelde woning is volledig gerenoveerd waarbij gebruik is gemaakt van hoogwaardige materialen. De woning beschikt over een tuingerichte woonkamer met schuifpui en keuken gelegen aan de voorzijde. Op de eerste verdieping zijn drie grote slaapkamers en de vernieuwde, zeer luxe badkamer. Op de tweede verdieping een ruime 4e slaapkamer studio met toegang tot het zonnige dakterras.
De geliefde wijk Dubbeldam kenmerkt zich door haar dorpse karakter met gemoedelijke sfeer. Dichtbij voorzieningen zoals Damplein, scholen, park en uitvalswegen.

Indeling van de woning is als volgt:
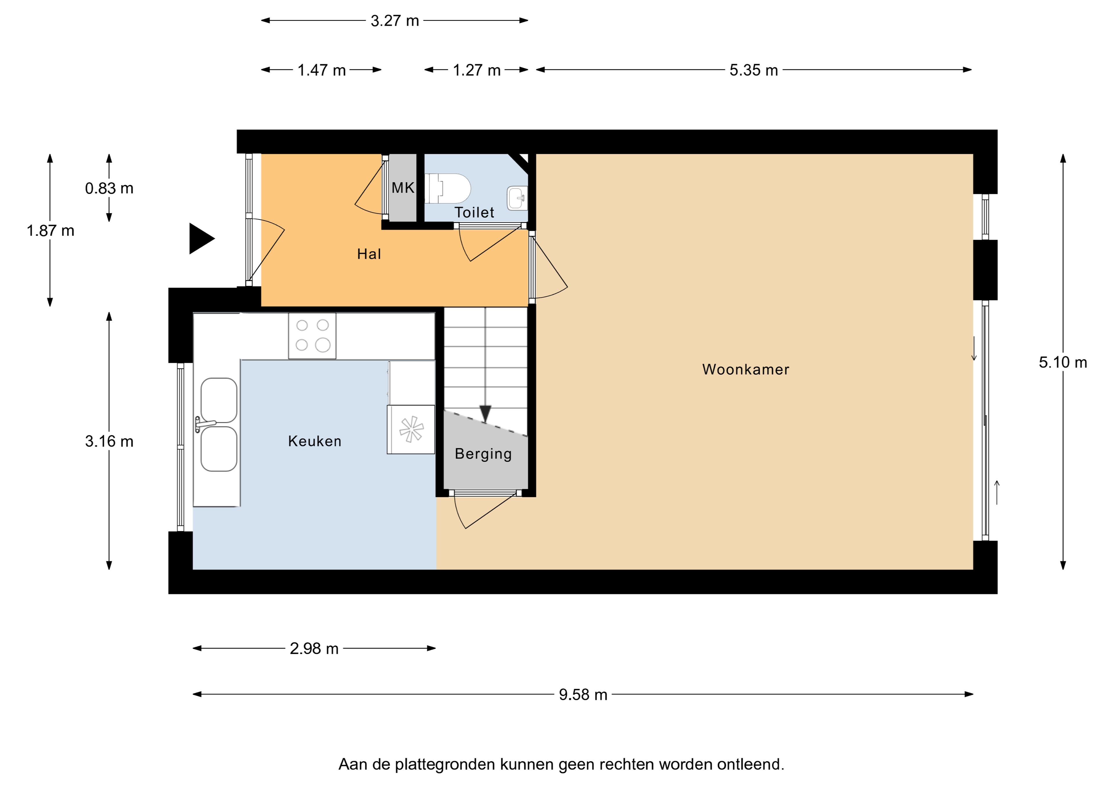
Begane grond
- Entree hal met uitgebreide meterkast en trapopgang naar eerste verdieping.
- De begane grondvloer is volledig voorzien van een luxe plavuizenvloer met vloerverwarming.
- WOONKAMER: de zeer moderne woonkamer (afm. ca. 5.40 x 5.10 m.) is een echte eyecatcher. Het plafond is verlaagd, gestuct en voorzien van led verlichting (multi color), de woonkamer heeft een elektrische haard (met led verlichting in diverse kleuren) en een schuifpui naar de achtertuin.
- KEUKEN: riante keuken (afm. ca. 3.15 x 3.00 m.) in U-opstelling met flesgroene fronten en diverse inbouwapparatuur, te weten: keramische kookplaat, afzuigschouw, oven, magnetron, koel- vriescombinatie en vaatwasser. Toegang tot diepe trapkast.
- TOILET: geheel betegelde, vernieuwde toiletruimte met grote wandtegels in donkere kleurstelling met wandcloset en fonteintje.

Eerste verdieping
- Ruime overloop met trapopgang naar de tweede verdieping. Deze verdieping is volledig voorzien van modern laminaat. Beide trappen zijn strak afgewerkt.
- SLAAPKAMERS: Alle slaapkamers hebben gestucte wanden en plafond met inbouwspots.
Slaapkamer 1 (afm. ca. 5.10 x 3.00 2.60 m.) is gelegen aan de voorzijde van de woning.
Slaapkamer 2 (afm. ca. 3.94 x 2.92 m.) is gelegen aan de achterzijde van de woning.
Slaapkamer 3 (afm. ca. 4.18 x 2.08 m.) is eveneens gelegen aan de achterzijde van de woning.
- BADKAMER: moderne badkamer (ca. 2.42 x 1.95 m.) betegeld met grote tegels in donkere kleurstelling met ligbad, separate inloopdouche met regendouche, handdouche, hardglazenscherm en easydrain, breed luxe badkamermeubel met ledverlichting (multi color) en wandcloset.

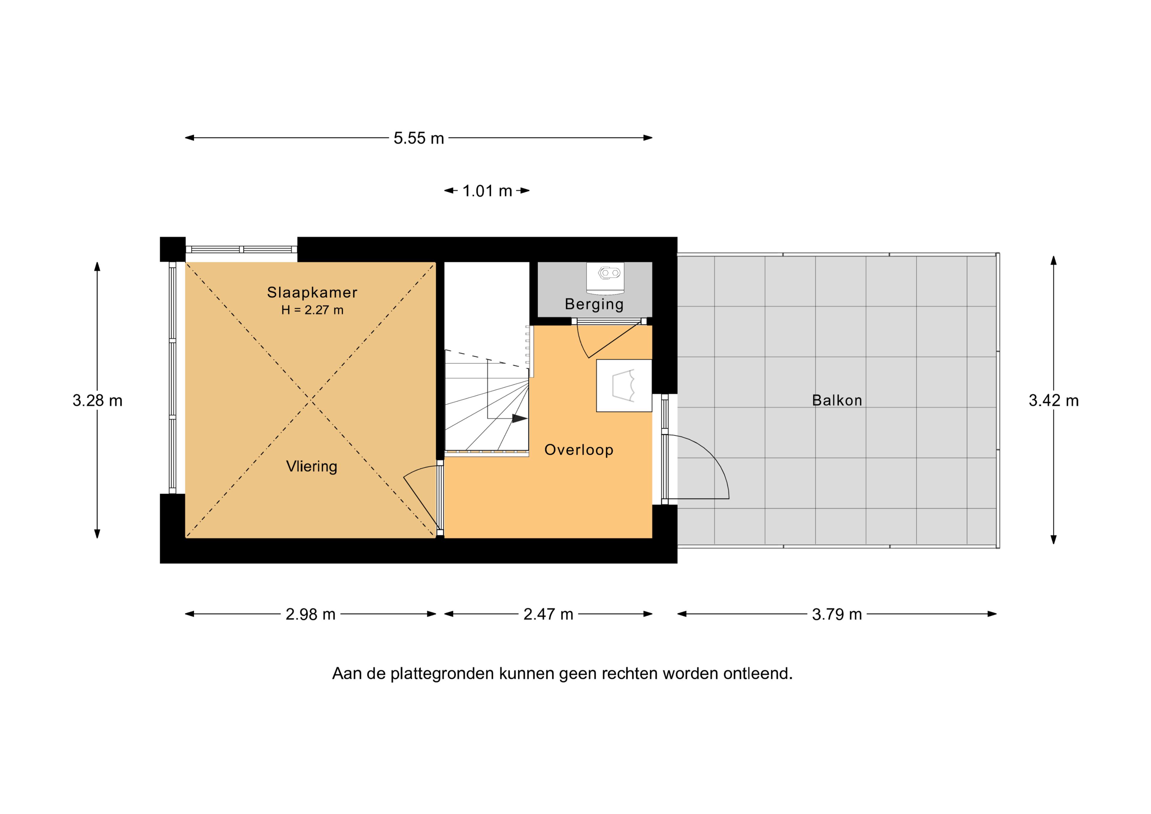
Tweede verdieping
- Overloop met toegang tot het dakterras en de was- stookruimte voorzien van wasmachine- en drogeropstelling, alsmede de opstelplaats van de combiketel Vaillant.
- Slaapkamer 4 studio (ca. 3.28 x 3.00 m.) met laminaatvloer.

Tuin: De fraai aangelegde achtertuin is gelegen op het zonnige zuiden is opnieuw bestraat. De tuin beschikt over een vrijstaande stenen schuur en afgesloten achterom.

Bijzonderheden:
- Luxueus verbouwd
- Zonwering ter plaatse van gevel woonkamer
- Benedenverdieping voorzien van plavuizen
- Eerste en tweede verdiepingen voorzien van modern laminaat
- Verwarming en warm water middels CV-ketel
- Volledig geïsoleerd
- Oplevering in overleg

Mijn Gratis Makelaar is de makelaar van de verkoper. Wij adviseren u uw eigen makelaar in te schakelen om uw belangen te behartigen bij de aankoop van dit object.

De gegeven informatie is met zorgvuldigheid opgesteld, aan de juistheid kunnen echter geen rechten worden ontleend. Alle verstrekte informatie moet beschouwd worden als een uitnodiging tot het doen van een aanbod of om in onderhandeling te treden.

Kenmerken
Overdracht
Startprijs
380.000 k.k.
Aangeboden sinds
22-06-2022
Aanvaarding
In overleg*
Bouw
Soort woning
Gezinswoning
Bouwjaar
1995
Soort bouw
Bestaande bouw
Oppervlakten en inhoud
Oppervlakte
114 m²
Overige inpandige ruimte
-
Perceeloppervlakte
118 m²
Indeling
Aantal kamers
5 kamers
Aantal badkamers
1 badkamer
Aantal woonlagen
3 woonlagen
Energie
Energielabel
C
Verwarming
CV-ketel
Warm water
CV-ketel